Air Permeability

Class 4

Water Tightness

Class 7A

Resistance to Window Load

Class C3

Thermal Transmission

Uw=3,79 W/m2.K
(Ug=2,0 W/m2.K)

Acoustic Attenuation

Rw(C;Ctr)<38(-1;-4)dB
w/glazing Rw=40 (C;-4)dB

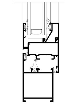
N12000

With a basic depth of just 40mm, eurogroove and central gasket, the n12 000 presents various solutions of straight, curved and tradicional forms, with and without glazing bead profiles, depending on the desired aesthetical objective.
It allows the construction of a great variety of window and door frames in accordance with all standards.
The products high performance, combined with the multiplicity of solutions, guarantee an optimal quality/price ratio.

See more projects with applied Navarra systems
Portfolio of Works