Air Permeability

Class 4

Water Tightness

Class 9A

Resistance to Window Load

Class C4

Thermal Transmission

Uw=1,53 W/m2.K *
(Ug=1,1 W/m2.K)

Acoustic Attenuation

Rw(C;Ctr)<38(-1;-4)dB
w/glazing Rw=40 (C;-4)dB

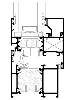
N14300

Three chambers casement system with a depth of 64mm on fixed frames and 72mm on vents.
With a thermal coefficient of Uw=1,4W/m2K (N14 300 with a view of 126mm), power consumption can be significantly reduced, consequently decreasing CO2 emission.
The increase of the N14 300 system profile depth improves the functional, thermal, acoustic and safety performances.

 

See more projects with applied Navarra systems
Portfolio of Works