Air Permeability

Class 4

Water Tightness

Class 4

Thermal Transmission

Uw=2,0 W/m2.K
(Ug=1,0 W/m2.K)

Resistance to Window Load

Class 9A

Acoustic Attenuation

Rw(C;Ctr)<38(-1;-4)dB
w/glazing Rw=40 (C;-4)dB

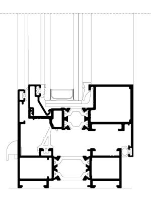
N14200 Concealed Frame

The concealed aluminium frame system N14 200 has a sash depth of 70,2 mm.
Manufactured with thermally improved three-chamber profiles, it uses 24 mm and 16 mm polyamide bars reinforced with fibreglass.
With a 66,5 mm wide sash, this system features the concealed frame, which allows maintaining the same view in both fixed and moveable sections.