N13200

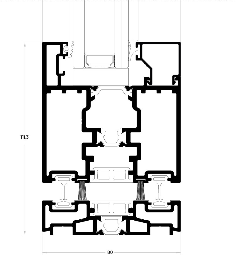
O sistema N13 200 é uma solução de portas pivotantes inovadora e de alta performance no setor da construção, especialmente desenvolvido para vãos de grandes dimensões. Este sistema é caracterizado por um aro com profundidade de 80 mm, o que permite a utilização de envidraçados com espessuras que variam de 28 mm até 48 mm, ou chapeamento com um enchimento de 80mm. O sistema permite executar vãos com larguras máximas de 2500 mm, alturas de 4000 mm e uma ferragem com um peso máximo por folha de 300kg.
Uma das principais vantagens do sistema é a sua notável performance térmica e acústica. Graças ao seu design, este proporciona um elevado isolamento térmico, contribuindo significativamente para a eficiência energética. A excelente capacidade de isolamento acústico ajuda a minimizar a entrada de ruídos externos, criando um espaço interno mais tranquilo e agradável.
Outro benefício fundamental deste sistema é a sua total conformidade com os requisitos estabelecidos pelo Regulamento dos Produtos da Construção, assegurando uma estrutura robusta e durável que garante tanto a segurança quanto a longevidade do produto.