Permeabilidade ao Ar

Classe 3

Atenuação Acústica

Rw(C;Ctr)<30(-1;-2)dB

Estanquidade à água

Classe 9A

Resistência ao Vento

Classe C3

Transmissão Térmica

Uw=2,05 W/m2. ºC

N26200

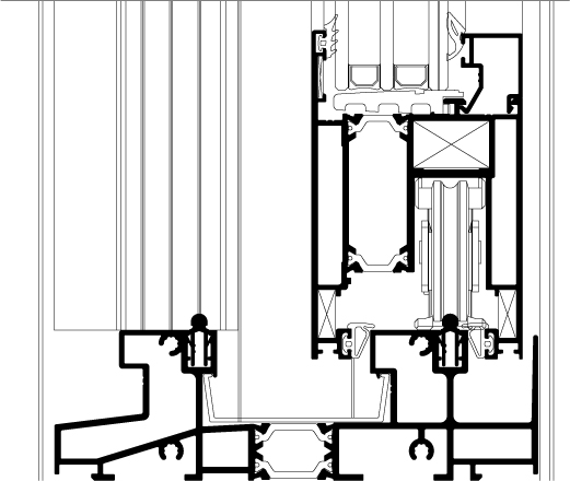
Sistema de correr elevável com perfis de linhas retas, aros fixos de 150 mm de profundidade e aros móveis de 102 mm de vista, com elevado isolamento térmico e acústico.
Um dos elementos diferenciadores deste sistema é a elevação das folhas ativas para abertura e fecho, efetuada por ação mecânica do acessório que facilita a manobra e deslizamento, suportando até 400 kg por folha.
Distingue-se pela segurança, resistência e suavidade de manuseamento, formando um sistema altamente inovador e indo ao encontro das expectativas dos utilizadores.
Permite a utilização de vidro simples, duplo ou triplo até 44mm.
Possibilidade de utilização de vãos em bicolor.

 

Veja mais projectos com os sistema Navarra aplicados
Portefólio de obras