Permeabilidade ao Ar

Classe 4

Estanquidade à água

Classe 8A

Resistência ao Vento

Classe C3

Transmissão Térmica

Uw=3,87 W/m2.K
(Ug=2,0 W/m2.K)

Atenuação Acústica

Rw(C;Ctr)<32(-1;-4)dB

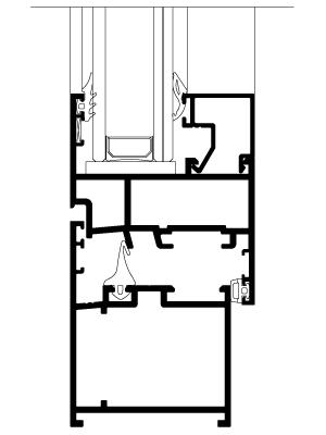
N13000

A profundidade de aro de 50 mm, câmara europeia e vedação central, são a garantia de excelentes prestações do sistema N13 000. Aliando a maior profundidade dos seus perfis com uma maior espessura, garante maior robustez, segurança e a execução de vãos de maiores dimensões.
Os acessórios selecionados para as várias tipologias de vãos proporcionam boa funcionalidade e ótima qualidade.
Este sistema com perfis de formas retas ou curvas para janelas e portas vai de encontro às necessidades da arquitetura, onde não seja prioritário o isolamento térmico.

 

 

Veja mais projectos com os sistema Navarra aplicados
Portefólio de obras