Permeabilidade ao Ar

Classe 4

Estanquidade à água

Classe E1200

Resistência ao Vento

Classe C4

Transmissão Térmica

Uw=1,64 W/m2.K
(Ug=1,10 W/m2.K)

Atenuação Acústica

Rw(C;Ctr)<36(-1;-6)dB
c/vidro Rw=40 (-2;-7)dB

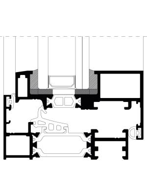
N17100

Sistema minimalista de batente, com vista em alçado de 45 mm para o conjunto aro fixo/aro móvel, que permite a execução de vãos com altura até 2700 mm e 170 kg por folha.
Com profundidade de aro fixo de 73 mm, o sistema N17 100 está disponível nas tipologias de batente, oscilobatente e basculante.
Em resposta às tendências da arquitetura contemporânea, o sistema permite a realização de vãos fixos e de abrir de vista reduzida, enchimentos até 34 mm e aplicação de dobradiças ocultas, resultando em elevados níveis de luminosidade, design e funcionalidade. 
Sendo um sistema de rutura de ponte térmica, permite vãos com acabamento bicolor.

Veja mais projectos com os sistema Navarra aplicados
Portefólio de obras