Permeabilidade ao Ar

Classe 4

Estanquidade à água

Classe E750

Resistência ao Vento

Classe C3

Transmissão Térmica

Uw=1,82 W/m2.K
(Ug=1,0 W/m2.K)

Atenuação Acústica

Rw(C;Ctr)<32(-1;-4)dB
c/vidro Rw(C;Ctr)=35(-2;-4)dB

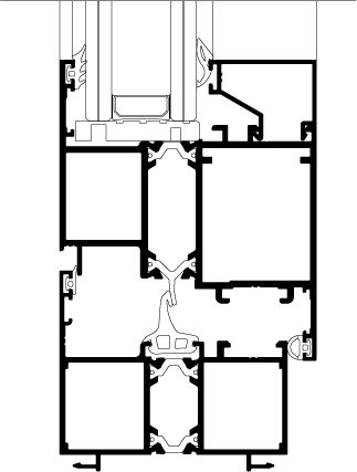
N16100

Com profundidade de aro de 70 mm, o sistema N16 100 permite a utilização de envidraçados até 65 mm, obtendo excelentes prestações térmica e acústica.
Adaptado aos novos sistemas construtivos europeus, utiliza acessórios de câmara europeia.
Este sistema possibilita a fabricação de portas e janelas e foi desenvolvido de modo a responder aos Requisitos Básicos do Regulamento dos Produtos da Construção: Resistência mecânica e estabilidade; Segurança contra incêndio; Higiene, saúde e ambiente; Segurança e acessibilidade na utilização; Proteção contra o ruído; Economia de energia e Isolamento térmico, tendo em consideração a utilização sustentável dos recursos naturais (ciclo de vida dos produtos).
Possibilita ainda vãos com acabamento bicolor.

Veja mais projectos com os sistema Navarra aplicados
Portefólio de obras