Permeabilidade ao Ar

Classe 4

Estanquidade à água

Classe 9A

Resistência ao Vento

Classe C4

Transmissão Térmica

Uw=1,53 W/m2.K *
(Ug=1,1 W/m2.K)

Atenuação Acústica

Rw(C;Ctr)<38(-1;-4)dB
c/vidro Rw=40 (C;-4)dB

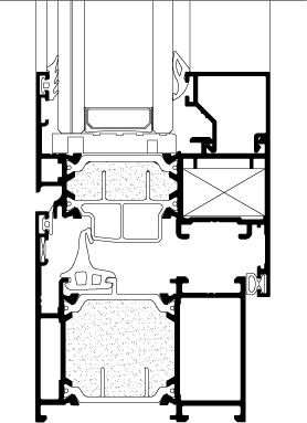
N14300

Sistema de batente com profundidade de 64 mm dos aros fixos e de 72 mm das folhas, com três câmaras.
Com um coeficiente térmico Uw=1,4W/m2K (N14 300 com vista de 126 mm) pode reduzir-se significativamente o consumo de energia e consequentemente a diminuição de emissão de CO2.
O aumento da profundidade dos perfis do sistema N14 300 permite a melhoria das performances funcionais, térmicas, acústicas e de segurança.
Permite vãos com acabamento bicolor.

 

 

Veja mais projectos com os sistema Navarra aplicados
Portefólio de obras