Transmissão Térmica

Uw = 1,8 W/m2K
Ug = 1,0 W/m2K

Permeabilidade ao Ar

Classe 4

Estanquidade à água

Classe 9A

Resistência ao Vento

Classe C4

Atenuação Acústica

Rw(C;Ctr) ≤ 38(-1;-4)dB
área total da janela ≤ 2,7 m2
unidade de vidro isolante Rw = 40(C;-4)

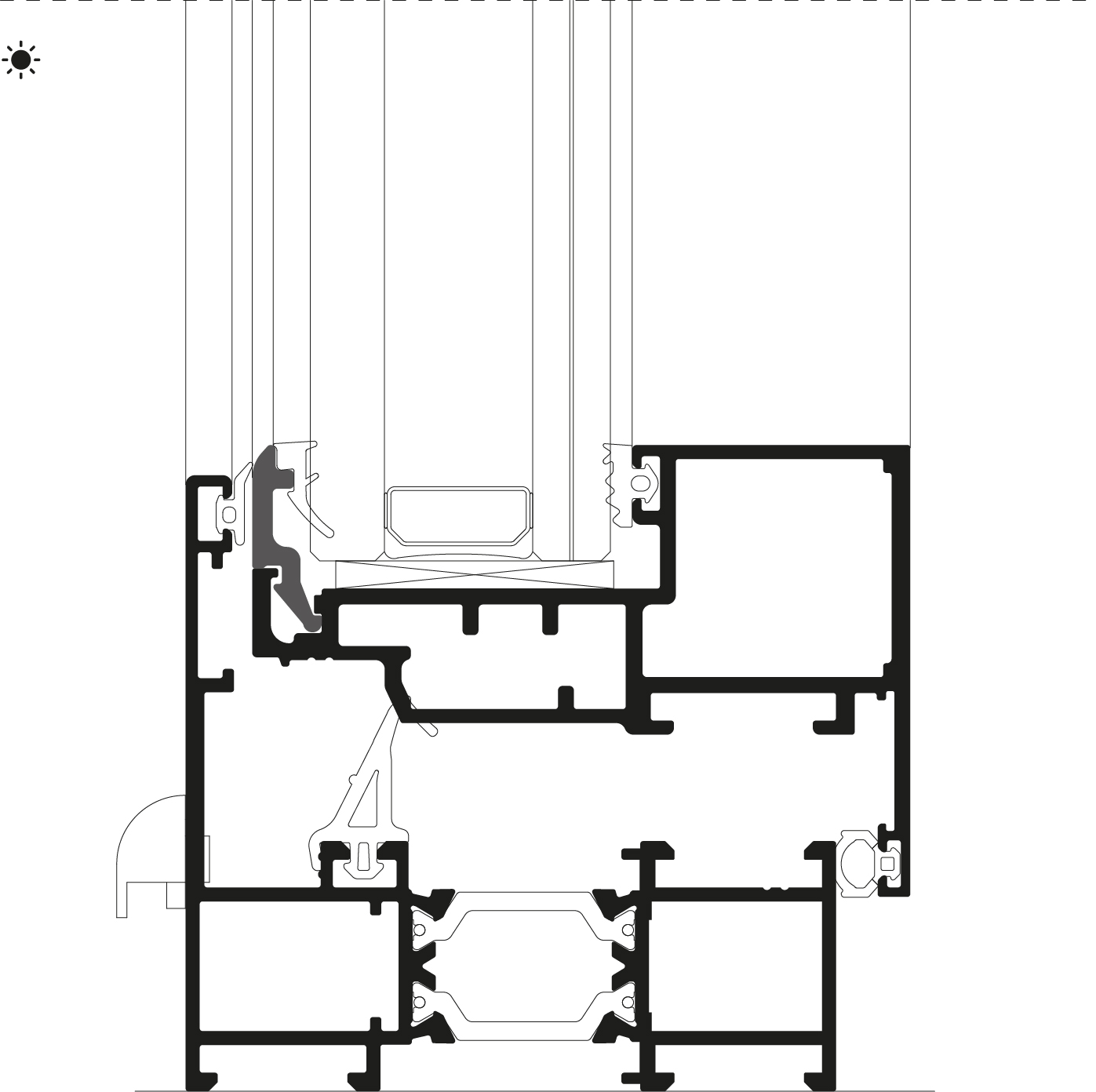
N14 200 FO Light

A Folha Oculta Light N14 200 é uma série de batente com rutura de ponte térmica, produzida com perfis termicamente melhorados de três câmaras, utiliza barras de
poliamida de 24 mm e 16 mm, reforçadas com fibra de vidro.
O sistema distingue-se pela integração de bite em poliamida preta no aro móvel, o que oferece uma solução mais económica sem comprometer a resistência mecânica do mesmo.
Este sistema vem melhorar a eficiência energética, isolamento térmico e acústico. Para além das vantagens mecânicas, tem como característica a ocultação da folha, mantendo sempre a mesma vista, em vãos fixos e móveis, proporcionando uma aparência mais uniforme e elegante, permitindo um design limpo e minimalista.