N31600 Sistema de Divisórias

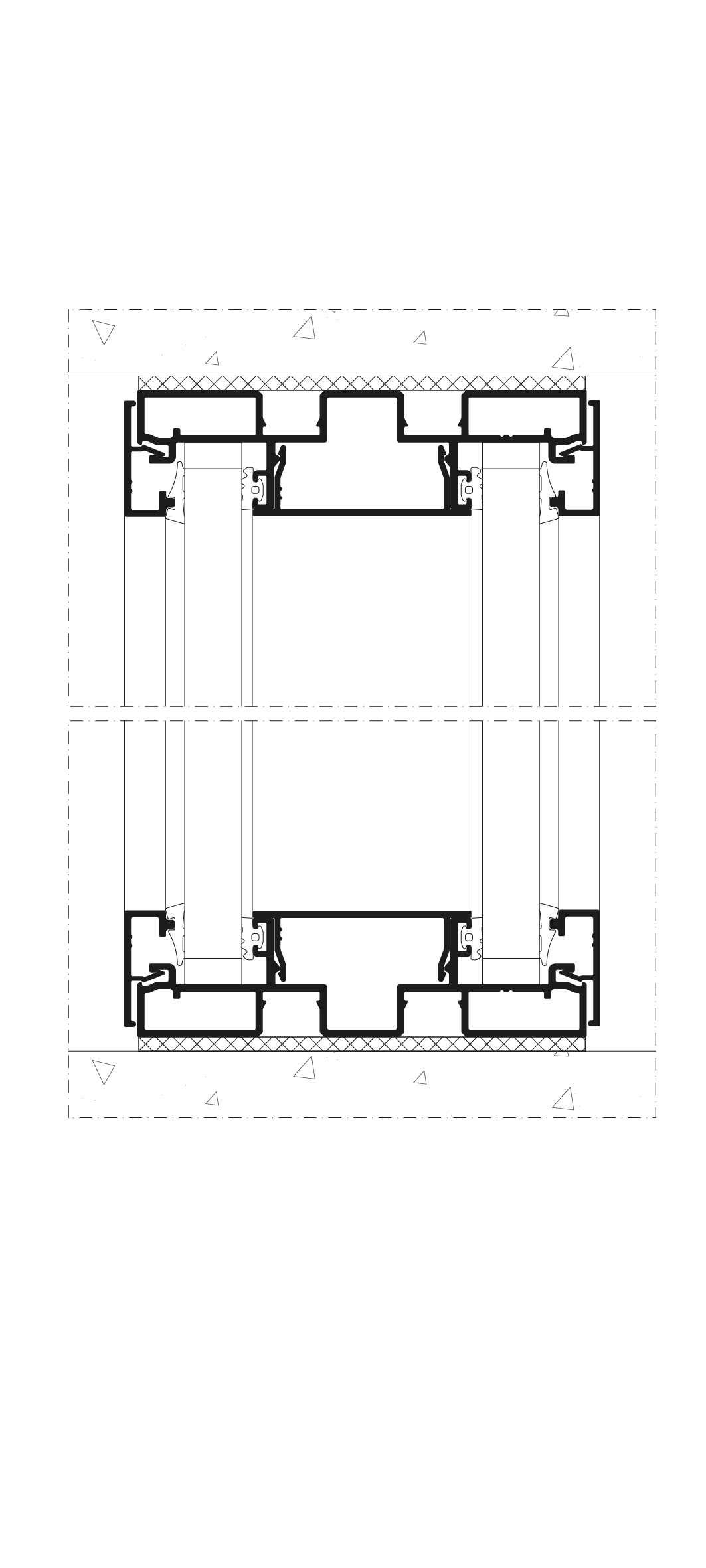
O sistema n31 600 é uma solução minimalista e resistente, desenvolvida para atender às necessidades arquitetónicas ao dividir ou separar espaços dentro de um ambiente.

Destaca-se pela elegância, facilidade de instalação, manutenção simples e opções de pré-fabricação. A estrutura pode acomodar diversos materiais, como vidro, acrílico, white board e black board.

Facilidade de montagem, modular, possibilidade de personalizar a solução e possibilidade de acomodar diversos materiais.